1715 Lisbon Drive SWAtlanta, GA 30310
Due to the health concerns created by Coronavirus we are offering personal 1-1 online video walkthough tours where possible.


Mortgage Calculator
Monthly Payment (Est.)
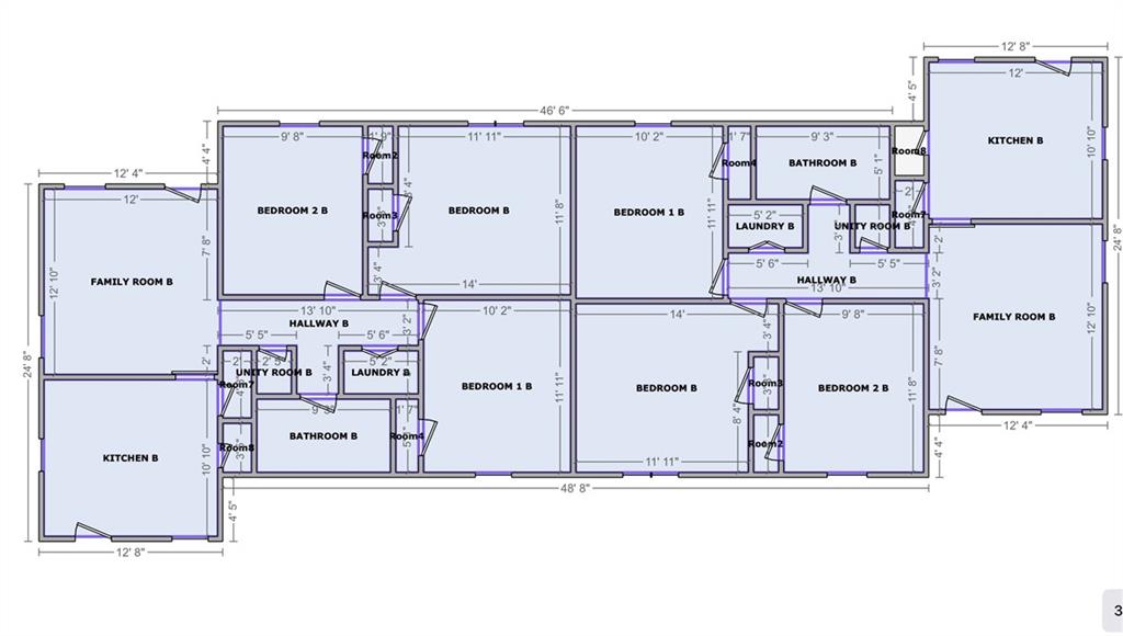
$2,053Fully renovated duplex in Southwest Atlanta offering exceptional flexibility for owner-occupants or investors. This move-in ready property features a total of 6 bedrooms and 2 full baths across two units, with extensive upgrades throughout. Brand New EVERYTHING including brand new hardwood flooring, fresh interior paint, brand new kitchen and bathrooms, new trim, new HVAC system, new water heater, new roof, new plumbing—providing peace of mind and low maintenance for years to come. Ideally located near the Atlanta BeltLine, Lee + White development, MARTA, parks, and Downtown Atlanta, this property offers convenient access to some of the city’s most desirable amenities and growth areas. Perfect for house hacking, rental income, or multi-generational living. A rare opportunity to own a fully renovated duplex in a rapidly developing in-town location.
| a week ago | Listing first seen on site | |
| a week ago | Listing updated with changes from the MLS® |
Listings identified with the FMLS IDX logo come from FMLS and are held by brokerage firms other than the owner of this website and the listing brokerage is identified in any listing details. Information is deemed reliable but is not guaranteed. If you believe any FMLS listing contains material that infringes your copyrighted work, please click here to review our DMCA policy and learn how to submit a takedown request.
© 2017-2026 First Multiple Listing Service, Inc.






©2021 BeltLandia. All information provided is deemed reliable but is not guaranteed and should be independently verified. Properties subject to prior sale or rental.
Did you know? You can invite friends and family to your search. They can join your search, rate and discuss listings with you.